Maskingatan 5, Arlandastad, Märsta
Fastpartner AB
Annons max600 m²
Hyra: Ej angiven
Tillträde: Enligt överenskommelse
Modern kombilokal med kontor och verkstad
Letar du efter en modern och flexibel lokal för din verksamhet? Nu finns möjligheten att hyra ett nyrenoverat och mycket fräscht kontor om 312 kvm, med en tillhörande lager-/verkstadsdel om 288 kvm även denna i toppskick.
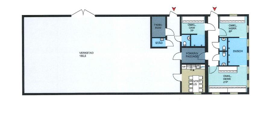
Kontorsdelen erbjuder en ljus och trivsam arbetsmiljö med moderna ytskikt, perfekt för både öppna landskap och enskilda arbetsrum. Lager- och verkstadsdelen är funktionellt utformad och utrustad med pentry samt omklädningsrum, och har även lastport för smidig in- och utlastning, vilket skapar goda förutsättningar för en effektiv och bekväm arbetsdag.
För verksamheter med behov av extra yta finns dessutom möjlighet att hyra en uppställningsyta om cirka 400 kvm i direkt anslutning.
En optimal lokal för företag som söker en kombination av representativt kontor och praktisk arbetsyta allt i nyrenoverat och inflyttningsklart skick.
Lokaltyper
Typ: Kontor, Produktionslokal, Lagerlokal
Minsta storlek: 600 m²
Största storlek: 600 m²
Villkor lokal
Tillträde: Enligt överenskommelse
Omgivning
Brista industriområde i Arlandastad har ett strategiskt läge längs väg 263, mellan E4 och Märsta centrum. Området är ett väletablerat verksamhetsområde med fokus på lager, logistik, lätt industri och produktion, där flera välkända aktörer inom branschen är representerade.
Här finns även ett brett serviceutbud med yrkesbutiker, restauranger, hotell samt JYSK. På bara någon minut nås Eurostop Arlanda med handel och service, och i närheten ligger även Märsta Centrum med ett komplett utbud av service.
Parkeringsmöjlighet: Parkeringsplats. Går att hyra.
Kommunikation
Fastigheten har ett mycket smidigt läge med direkt närhet till E4 via avfarten Arlandastad/Märsta/Eurostop. Med bil når du Upplands Väsby på cirka 15 minuter, Uppsala på cirka 20 minuter och Stockholm city på cirka 30 35 minuter, beroende på trafik.
Kollektivtrafiken är väl utbyggd. Bussförbindelser finns i området med hållplatser i nära anslutning till fastigheten och god turtäthet under rusningstid. Resan till Märsta station tar endast några minuter.
Från Märsta station går pendeltåg mot Stockholm City (cirka 35 40 minuter) samt norrut mot Uppsala (cirka 20 minuter). Härifrån finns även goda förbindelser till Arlanda via både buss och tåg.
Planlösning
Öppen eller rumsindelat
Annonsinformation
Publicerad: 2026-03-23
Objektsnummer: 41997646









