Verkstad, Kosterögatan 15, Östra hamnen, Malmö
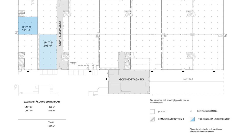
- 350–608 m²
- Omgående
Prisvärda och nyrenoverade lagerenheter på markplan – Perfekt för smidig långtidslagring!
Om lokalen
- Lokaltyper
- Verkstad / Lagerlokal / Övrig lokal
- Total yta
- 350–608 m²
- Adress
- Kosterögatan 15
- Område
- Östra hamnen
- Kommun
- Malmö kommun
- Byggår
- 1961
- Hiss
- Ja
- Tillträde
- Omgående
- Objektsnummer
- 41984064
Beskrivning
Prisvärda och nyrenoverade lagerenheter på markplan – Perfekt för smidig långtidslagring!
Hyr lättillgängliga och flexibla lagerytor med prisvärda hyror, bara 3 km från centrala Malmö.Dessa nyrenoverade lagerenheter på 350 – 608 kvm är perfekta för företag som behöver funktionella och smidiga lösningar för långtidslagring. För större behov kan flera enheter enkelt kombineras för att matcha just din verksamhet.
Vad lagerenheterna erbjuder:
• Storlek: Enheter från 350 kvm upp till 608 kvm, med möjlighet att kombinera flera ytor.
• Tillgänglighet: Belägna på markplan för enkel och bekväm hantering.
• Inlastning: Gemensam markport som underlättar transporter och logistik.
• Renoverade ytor: Modern standard som fortfarande är kostnadseffektiv.
• Komplement: Tillgång till pentry och WC i byggnaden intill samt möjlighet att hyra kontorsutrymme.
Dessa ytor är utformade för att möta behoven hos företag som söker en enkel, funktionell och prisvärd lagringslösning med hög tillgänglighet.
Strategiskt läge i Östra Hamnen:Fastigheten är belägen i det expansiva industriområdet Östra Hamnen, vilket erbjuder ett utmärkt läge nära stadens norra infartsleder. Tack vare närheten till Västkustvägen, Inre Ringvägen, E6/E20 och E22, har området en optimal tillgänglighet för både lokal och regional logistik.
Områdets fördelar:
• Dynamiskt företagsområde: Ett etablerat centrum för lättindustri, lager och logistik.
• Service i närheten: Tillgång till lunchrestauranger och enklare handel i närområdet.
• Kommunikationer: Smidig pendling med buss till centrala Malmö.
Välkommen att boka visning!Kontakta oss idag för mer information eller för att boka en visning. Upptäck dessa flexibla och lättillgängliga lagerenheter – en perfekt lösning för din verksamhet.
Kommunikationer
Goda kollektivtrafikförbindelser med buss till centrala Malmö
Planlösning
Se planritning bland bilder/PDF.
Parkering
Fri parkering
Service
Enklare serviceutbud av handel och lunchrestauranger i närområdet
Vägbeskrivning
Direkt anslutning till Västkustvägen som leder till Inre Ringvägen, E6/E20 och E22
Närliggande företag
PostNord, Mechanum, INR Försäljning Sverige AB, Exakta Print AB och Bring












