Kungsgatan 43, Centrum, Eskilstuna
Stenvalvet
Annons plus293–723 m²
Hyra: Ej angiven
Tillträde: Enligt överenskommelse
Välkommen att hyra kontor från 293 - 723 kvm!
I K43 erbjuder vi effektiva lösningar då kontorslokalerna anpassas efter just er verksamhet. Planlösning och ytskikt skissas fram tillsammans med hyresgästen - kontorslandskap, enskilda kontor, konferensrum, lunchutrymmen mm, vilka behov och önskemål har ni?
Visionsbilden av planlösningen om 723 kvm erbjuder 44 arbetsplatser, konferens- och samtalsrum i varierande storlekar, paus- och lunchrum samt wc-grupper.
Om ni önskar ett mindre kontor finns en visionsbild med en öppen planlösning om 430 kvm och 30 arbetsplatser, olika stora mötesrum, lunchrum samt wc-grupper.
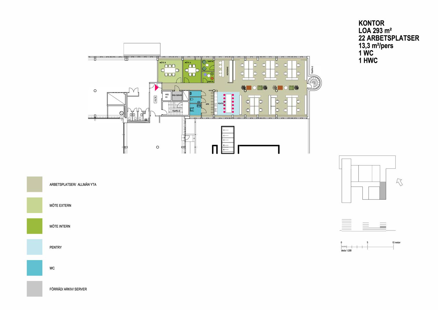
Vi erbjuder även en mindre yta om 293 kvm - se visionsbilden. Här finns möjlighet till 22 arbetsplatser, samtals- och mötesrum, personalutrymmen och wc-grupp.
I K43 finns flertalet cykelrum i källaren samt cykelställ utanför fastigheten på torget mot Bruksgatan. Här på torget har vi även bänkar för en paus utomhus när vädret tillåter.
Fastigheten har ett mycket centralt läge med flertalet restauranger, caféer, gym och shopping alldeles intill.
Trevliga promenadstråk i Rinmans- och Rothoffsparken alternativt längs Eskilstunaån och i Stadsparken.
Tågstation och resecentrum är belägna ett par hundra meter från fastigheten.
Varmt välkomna att kontakta oss för mer information eller för att boka en visning!
Lokaltyper
Typ: Kontor
Minsta storlek: 293 m²
Största storlek: 723 m²
Våningsplan: 2
Byggnad
Byggår: 1980
Renoveringsår: 2018
Villkor lokal
Tillträde: Enligt överenskommelse
Omgivning
Välkommen till K43 - Eskilstunas modernaste kontorskvarter. Välkänd och representativ fastighet som har moderniserats och som håller hög nivå på säkerhet och skalskydd.
Parkeringsmöjlighet: Flertalet utomhusparkeringar och parkeringshus är belägna inom gångavstånd i centrum.
Närservice: K43 har ett mycket centralt läge med gångavstånd till tåg- och busstation, shopping, restauranger, gym, apotek, frisörer, hotell, Mälardalens Universitet mm. Ett stenkast från fina parker och promenadstråk runt Eskilstunaån. Till Munktellbadet och Volvo CE Arena är det en kort promenad på ca 8 minuter.
Stadsnät finns i fastigheten.
Kommunikation
Fastigheten ligger endast ett par hundra meter från tågstationen och Resecentrum med täta avgångar till bl a Stockholm, Västerås och Örebro. Ett par minuters promenad till de flesta lokala busslinjerna.
Planlösning
- Kontorslandskap alternativt enskilda kontor för 22 - 44 personer
- Samtals- och mindre mötesrum, konferensrum
- Reception
- Paus- och lunchrum samt övriga personalutrymmen
- Wc-grupper
Annonsinformation
Publicerad: 2025-11-26
Objektsnummer: 41994514

















