Hantverkaregatan 6, Centrum, Falun
Stenvalvet
Annons plus421 m²
Hyra: Ej angiven
Tillträde: Enligt överenskommelse
Modern kontorslokal om 421 kvm i centrum av Falun
Välkomna till fastigheten Kardmakaren i centrala Falun!
Vi erbjuder nu en mycket fin och modern kontorslokal på våning 2 om 421 kvm i centrum av Falun. Här finns kontorslandskap, konferensrum, trevliga gemensamhetsytor inklusive öppen planlösning för lunch- och fikadel samt wc-grupp.
P-hus Engelbrekt (Allmänt) finns under fastigheten. Cykelrum i gatuplan för den som önskar.
Fastighetens läge ger närhet till utbudet i centrum av restauranger, caféer, gym och shopping. Vacker omgivning för lunchpromenad längs Faluån.
Resecentrum är beläget en kort promenad från fastigheten.
Varmt välkomna att kontakta oss för mer information eller för att boka en visning!
Lokaltyper
Typ: Kontor
Minsta storlek: 421 m²
Största storlek: 421 m²
Våningsplan: 2
Byggnad
Byggår: 1989
Villkor lokal
Tillträde: Enligt överenskommelse
Omgivning
Kontorsfastighet i centrala Falun, belägen vid den vackra Faluån och granne med Polishuset. Närhet till trevliga restauranger, shopping och hotell.
Parkeringsmöjlighet: P-hus Engelbrekt (Allmänt) finns under fastigheten.
Närservice: Ett stenkast från fastigheten ligger centrum med all tänkbar service.
Kommunikation
Resecentrum, med all kollektivtrafik samlad, ligger inom några minuters promenadavstånd.
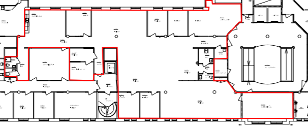
Planlösning
- kontorslandskap
- konferensrum
- trevliga gemensamhetsytor inklusive öppen planlösning för lunch- och fikadel
- wc-grupp
Se planlösning.
Annonsinformation
Publicerad: 2025-11-26
Objektsnummer: 41994525












