Hållnäsgatan 3, Librobäck, Uppsala
Mäklarhuset Kommersiella Uppsala
Annons plus281–1 800 m²
Hyra: Ej angiven
Tillträde: Ej angivet
Rymlig kontor/lagerlokal i populära Librobäck
Varmt välkommen till Hållnäsgatan 3 och denna stora lokal om totalt 1 800 kvm. Denna lokal erbjuder rymliga kontorsutrymmen samt stort nybyggt höglager med generös takhöjd om ca. 7,5 m. Lokalen består utav 2 plan, där entréplan erbjuder både kontor och lagerutrymmen. På övervåningen finns det ytligare kontorsutrymmen, där det även finns flertalet separata kontorsrum. Genomgående är lokalen modern och ljus tack vare stora fönsterpartier och tre portar. Det erbjuds även möjlighet att påverka både planlösningen och utformandet. På gården finns det gott om parkeringar för personal och kunder, det finns även tillgång till flertalet laddstolpar. Läget är lättillgängligt och i området är det blandade industri- lager och kontorsverksamheter. Från området är det goda kommunikationer till Uppsala centrum liksom E4:an och de andra större vägarna kring Uppsala. Här finns närhet till lunchrestauranger och god service vid Nelins och Mimi Ekholms plats. För mer information och visning, kontakta ansvarig mäklare!
Om lokalen
- Kommun
- Uppsala kommun
- Objektsnummer
- 41986716
Omgivning
Librobäck är ett område med blandade verksamheter såsom mindre verkstäder, högteknologi, kontor och handel.
Kommunikationer
Området har goda kommunikationer med Uppsala Centrum som ligger på ett avstånd om ungefär 4 km. Med bil ligger Bärbyleden även i nära anslutning till E4:an eller Enköping/Västerås.
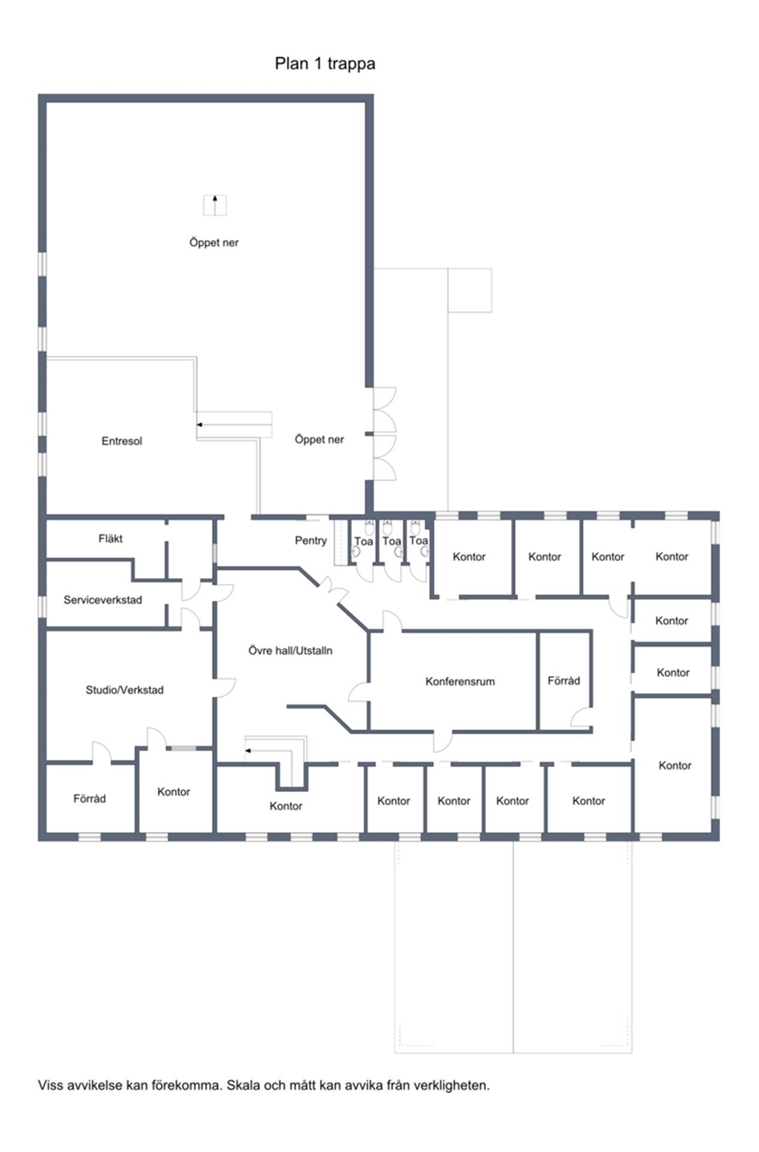
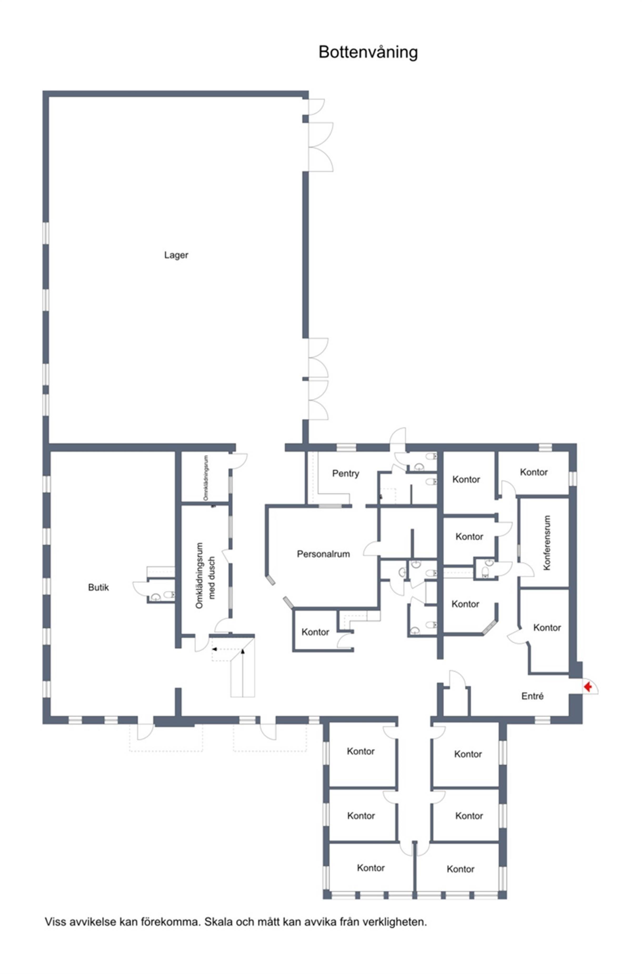
Planlösning
Stort lager med tillhörande rymliga kontorsutrymmen om totalt 1 800 kvm. Lokalen består utav 2 plan där ena delen på entreplan är kontorsutrymmen om ca. 280 kvm. Vidare in i lokalen finns ytligare kontorsutrymmen samt höglager och övervåningen består utav flertalet kontorsrum. I anslutning till lokalen finns det ett nybyggt höglager om 396 kvm, här erbjuds det gernerös takhöjd om ca. 7,5 m. Det går att anpassa lokalen efter behov med tex entresol för tex kontor mm. Lokalen har flertalet ingångar varav av några har tillhörande portar.
Närliggande företag
Det finns mycket bra servie med Nelinsbytiken näsra sen finn även Icabutik, Apotek, Sushi mm vid Mimmi Ekholmstorg



















