Kontor, Drottninggatan 59, City, Stockholm
- 227 m²
- Enligt överenskommelse
Lummigt litet gårdshus i två plan om totalt ca 227 kvm på central adress, mitt i hjärtat av Stockholm.
Om lokalen
- Lokaltyper
- Kontor / Övrig lokal
- Total yta
- 227 m²
- Adress
- Drottninggatan 59
- Område
- City
- Kommun
- Stockholms kommun
- Hiss
- Ja
- Våning
- 0
- Tillträde
- Enligt överenskommelse
- Objektsnummer
- 41996109
Beskrivning
Varmt välkommen till denna drömlokal mitt i Stockholms hjärta!
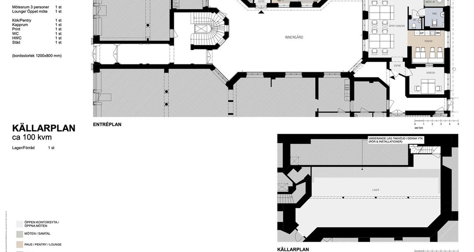
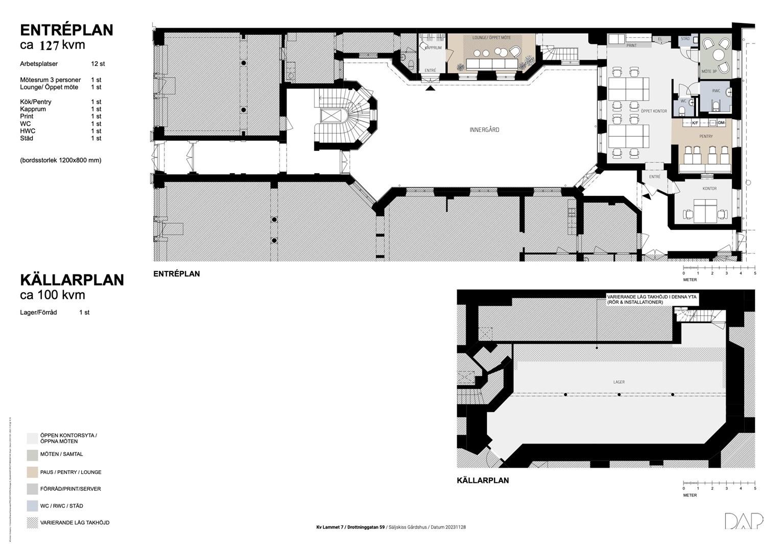
Här erbjuder vi nu ett unikt gårdshus om totalt ca 227 kvm, inklusive både markplan (ca 127 kvm) och en rymlig källare (ca 100 kvm).
Delen i markplan har stora fina fönster ut mot innergård och en härlig takhöjd.
Här finns en bra mix av både öppna ytor i kombination med telefon/mötesrum samt två st WC.
Ytan är perfekt för att skapa en inspirerande kontorsmiljö eller ett härligt showroom.
Källaren är en mångsidig tillgång och passar utmärkt som lager eller förråd t.ex. Här får du den extra ytan du behöver för att optimera din verksamhet och hålla den smidigt organiserad.
Lagerdelen kan också nås från adress Korgmakargränd där ni kan lasta av/in eventuella leveranser.
Fastigheten är belägen mitt i hjärtat av Stockholm, omgivet av pulserande stadsliv och affärsaktivitet, kommer din verksamhet att dra nytta av ett strategiskt läge.
Som hyresgäst i fastigheten har du även tillgång till en mycket fin innergård som på somrarna möbleras för hyresgästerna.
Lokalen har nyligen renoverats med nya golv i markplan, målade väggar, uppfräschning av pentry m.m.
Välkommen att kontakta oss för mer information och en personlig visning!
Omgivning
Centralt mitt i City. Detta centrala läge är inte bara en plats, det är en strategisk fördel för din verksamhet. Med ett pulserande flöde blir Drottninggatan 59 det ultimata navet för din framgång.
Kommunikationer
Två minuter till Hötorget, tre minuter till T-centralen.
Karta
Bilder på lokalen
Drottninggatan 59 Drottninggatan 59 Drottninggatan 59 Drottninggatan 59 Drottninggatan 59 Drottninggatan 59 Drottninggatan 59 Drottninggatan 59 Drottninggatan 59 Drottninggatan 59 Drottninggatan 59 Drottninggatan 59 Drottninggatan 59 Drottninggatan 59 Drottninggatan 59 Drottninggatan 59 Drottninggatan 59 Drottninggatan 59 Drottninggatan 59 Drottninggatan 59 Drottninggatan 59 Drottninggatan 59 Drottninggatan 59 Drottninggatan 59 Drottninggatan 59 Drottninggatan 59 Drottninggatan 59





























