Kontor, Ryssnäsgatan 14, Viared, Borås
- 100–850 m²
Ljusa och flexibla kontorsytor i markplan i Viared Företagspark. Möjlighet att kombinera kontor med lager/logistik. Mycket bra läge nära Riksväg 40 med god tillgänglighet till Borås, Göteborg och Jönköping. Goda parkeringsytor, personalutrymmen och laddpark för tung trafik i anslutning till fastigheten.
Om lokalen
- Lokaltyper
- Kontor / Butikslokal / Lagerlokal / Övrig lokal / Studio / ateljé / Kontor / Lager
- Total yta
- 100–850 m²
- Adress
- Ryssnäsgatan 14
- Område
- Viared
- Kommun
- Borås kommun
- Renoveringsår
- 0
- Hiss
- Nej
- Takhöjd
- 0 cm
- Objektsnummer
- 41995870
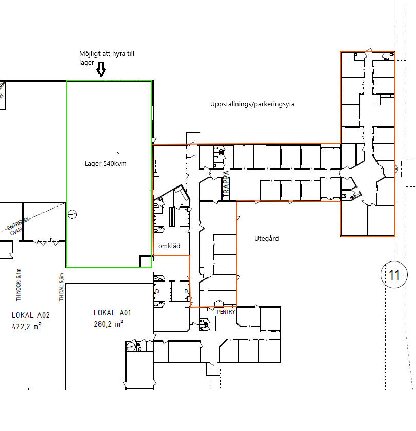
Beskrivning
Nu finns möjlighet att hyra ljusa och flexibla kontorsytor i Viared Företagspark, ett av Västsveriges mest attraktiva områden för företag med behov av god tillgänglighet och logistiknära läge.
Lokalen har markplansläge med enkel access och en flexibel planlösning med glasväggar som ger ett bra ljusinsläpp och en öppen arbetsmiljö. Kontoret kan anpassas efter verksamhetens behov och det finns möjlighet att kombinera kontor med angränsande lager- eller logistikytor.
Fastigheten erbjuder goda parkerings- och uppställningsytor, personalutrymmen med omklädningsrum samt uteplats i direkt anslutning till lokalen. Laddpark för tung trafik finns i anslutning till fastigheten.
Mycket bra läge intill Riksväg 40 med ca 10 minuter till Borås, ca 45 minuter till Göteborg och ca 50 minuter till Jönköping. Området har även goda kollektivtrafikförbindelser.
Lokalen passar företag som söker kontor i kombination med lager, logistik eller serviceverksamhet i ett etablerat och växande företagsområde.
Parkering
Ja









