Torbornavägen 13A, Ättekulla, Helsingborg
Mileway Sweden AB
Annons max9 362 m²
Hyra: Ej angiven
Tillträde: Omgående
Flexibla logistikytor med kyllager och 25 lasthus i Helsingborg – strategiskt läge utmed E6/E4
Nu finns möjlighet att hyra en logistikytor upp till totalt 9 362 kvm, med kyllager, kontor och kapacitet som omlastningscentral, på ett av Helsingborgs mest strategiska lägen vid E6/E4. Lokalen erbjuder stor flexibilitet för anpassning efter hyresgästens behov. Inflyttning kan ske enligt önskemål.
Kontorsytorna på plan 1-2 kan hyras tillsammans med lagerytor eller separat, vilket ger god flexibilitet beroende på verksamhetens behov.
Lediga ytor:
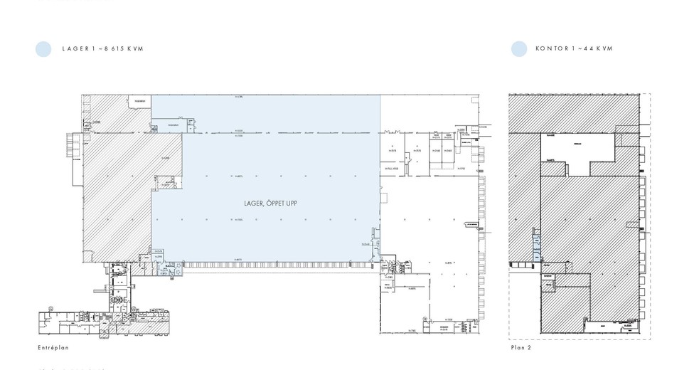
• Total lageryta: 8 615 kvm
• Total kontorsyta: 747 kvm (fördelat på plan 1 och 2)
Fastighetens fördelar:
• Lagerytor om totalt ca 8 615 kvm, med möjlighet till kyla.
• Takhöjd ca 6-7 meter
• 25 lasthus och ramp – idealiskt för omlastning
• Omklädningsrum och kontorsutrymmen i direkt anslutning till lagret
• Hållbara lösningar med LED-belysning och möjlighet till solceller på taket
Strategiskt läge i Ättekulla:
Ättekulla är ett väletablerat industriområde endast 7 km söder om centrala Helsingborg, med direkt access till E4/E6. Området präglas av verksamheter inom logistik, lättindustri och handel, och erbjuder närhet till service samt goda kollektivtrafikförbindelser.
Denna fastighet erbjuder en optimal lösning för företag som söker moderna, flexibla och välbelägna logistiklokaler. Se planritning för mer detaljer.
Dokument
Lokaltyper
Typ: Kontor, Lagerlokal, Övrig lokal, Verkstad
Minsta storlek: 9362 m²
Största storlek: 9362 m²
Våningsplan: 1
Fastighet
Fastighetsbeteckning: Ättehögen Östra 3
Byggnad
Byggår: 1976
Egenskaper
Villkor lokal
Tillträde: Omgående
Omgivning
Parkeringsmöjlighet: Goda parkeringsmöjligheter
Närservice: Brett serviceutbud av handel och lunchrestauranger i närområdet
Företag i närheten: DB Schenker, PostNord, Dagab, TIP Trailer Services och Carlsberg
Vägbeskrivning: Direkt anslutning till E4 och E6
Kommunikation
Goda kollektivtrafikförbindelser med buss till centrala Helsingborg
Planlösning
Se planritning som bifogad PDF eller bland bilder.
Annonsinformation
Publicerad: 2024-04-26
Objektsnummer: 41975230











