Tekla Thomassons gata 11, Sege Park, Malmö
Fastighets AB Trianon
Annons plus75 m²
Hyra: Ej angiven
Tillträde: Enligt överenskommelse.
Spännande lokal i Sege Park!
Önskar ni en spännande och unik lokal med karaktär som har stort utrymme för idéer, inspiration och arbetsglädje?Vi erbjuder 75 kvm lokal för kreativa verksamheter eller något som bidrar till granngemenskapen, är till nytta för området och vänder sig utåt till allmänheten, dvs en verksamhet som är öppen och publik. EJ lämpad för renodlat lager eller produktion! Lokalen har en stor öppen yta på 75 kvm som upplevs mycket ljus och rymlig tack vare många fönster samt hög takhöjd och ger en modern känsla med en rustik industriell touch. Egen entré på hörnan samt en WC. Pentry och flera toaletter delas med andra hyresgäster i fastigheten. Lokalen kan nyttjas som kontors- utställnings-, studio- och mötes-/samlingslokal. Även möjligt att hyra den stora lokalen bredvid för en totalyta på 385 kvm. Hur önskar ni nyttja lokalen? Vi lyssnar på era tankar och önskemål! Belägen i Sege Park nära kommunikationer, många parkeringsmöjligheter, grönskande Beijersparken och bostäder med endast 4 km cykeltur till Malmö Centralstation. Sege Park utvecklas till en ny modern stadsdel med bostäder och grönskande park med fokus på hållbarhet och resurser.
Egenskaper
Om lokalen
- Kommun
- Malmö kommun
- Våning
- 1
- Tillträde
- Enligt överenskommelse.
- Objektsnummer
- 41997490
Omgivning
Härligt bostadsområde med parkmiljöer i närheten av Beijersparken med trevligt café, motionsmöjligheter och nära naturen.
Kommunikationer
Ca 4 km cykeltur in till Malmö Centralstation. Busshållplats ligger ett stenkast bort med stadsbuss till city. För bilpendlaren är det nära till Västkustvägen, Lundavägen, Stockholmsvägen och Ringlederna. Flera parkeringsmöjligheter finns på fastigheten samt intilliggande parkeringshuset.
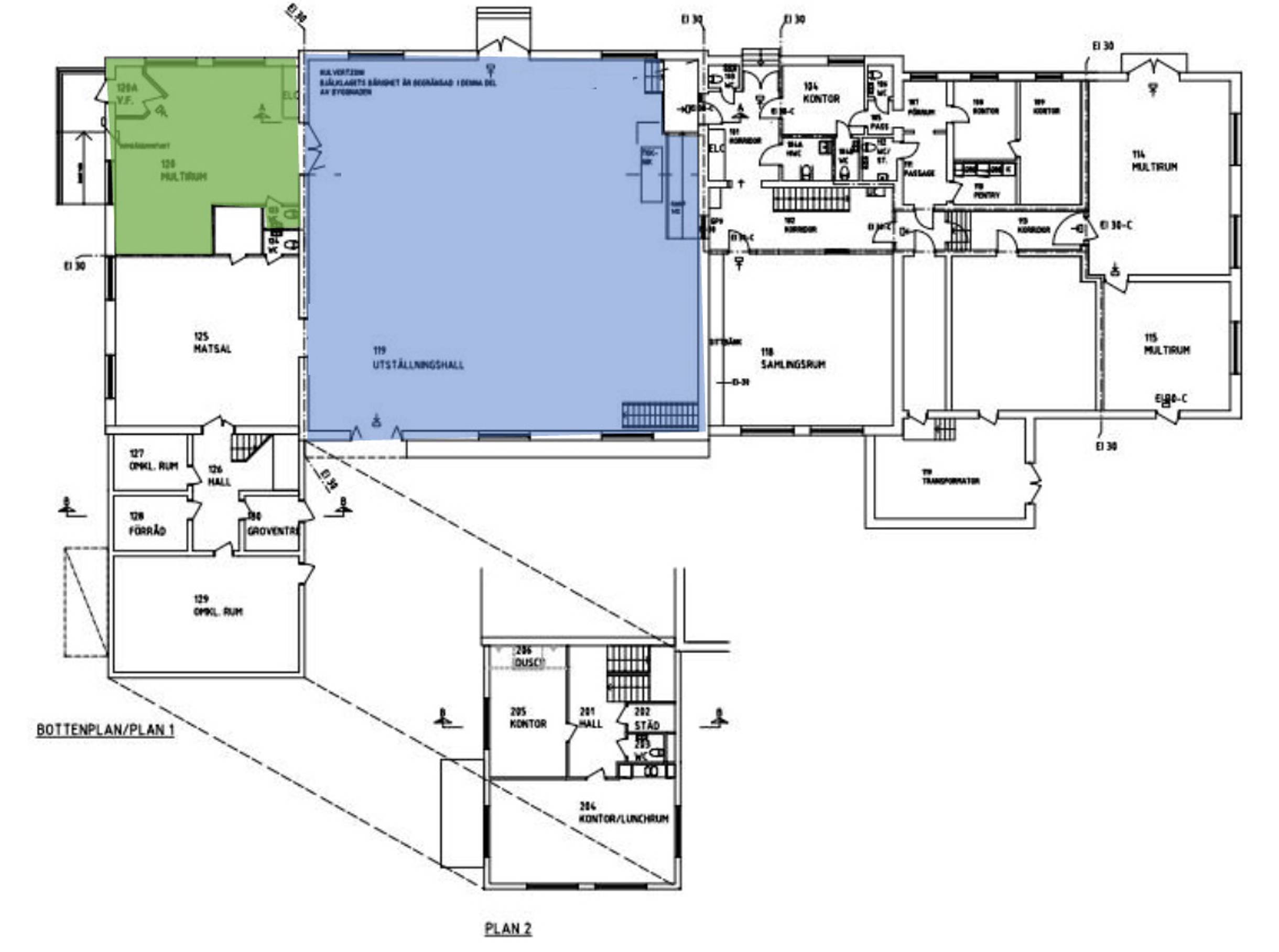
Planlösning
Lokal med med WC (grönt på ritningen).
Pentry och fler toaletter delas gemensamt i fastigheten (delar av det ofärgade på ritningen).
Parkering
På fastigheten erbjuds möjlighet till parkeringsplatser samt även flera platser i det intilliggande parkeringshuset.
Service
På Segevång och i Kirseberg finns handel, service, lunchrestauranger, samhällsservice med mera. Även Värnhem med Entré ligger nära med stort utbud av service och lunchrestauranger.
Vägbeskrivning
Se Google maps.








