Ryssnäsgatan 2, Viared, Borås
Logistea AB
Annons plus250–7 000 m²
Hyra: Ej angiven
Tillträde: Enligt överenskommelse. Enligt överenskommelse
E-handelslager med befintligt sorteringsverk
På Ryssnäsgatan 2 i Viared (Borås) erbjuder vi lagerlokaler om 6 500 Kvm som kan delas in i mindre enheter om ca 3 000 Kvm. Möjlighet till anslutande kontor finns.
Lokaltyper
Typ: Kontor, Lagerlokal, Verkstad
Minsta storlek: 250 m²
Största storlek: 7000 m²
Fastighet
Fastighetsbeteckning: Vindan 1
Byggnad
Uppvärmning: Fjärrvärme
Egenskaper
Villkor lokal
Tillträde: Enligt överenskommelse. Enligt överenskommelse
Omgivning
Viared är ett viktigt område för Borås expansion som ligger längs med Riksväg 40 med ca 50 min till Göteborgs hamn. Med en strategisk skandinavisk placering med ungefär samma avstånd till Stockholm, Köpenhamn och Oslo är Viared ett utmärkt område för företag som värdesätter läget som konkurrensfördel.
Närservice: I närområdet finns bla. restauranger, snabbmat, bensinstation och padelcenter.
Vägbeskrivning: Ryssnäsgatan 2, Borås
Kommunikation
Fastigheten ligger lättillgänglig från Riksväg 40, ca 3-4 minuters bilresa från avfart nr. 82, Nabbamotet, till fastigheten. Buss trafikerar sträckan. Det strategiska läget vid Riksväg 40 mellan Göteborg och Jönköping bidrar till Viareds styrka som ett logistikcentrum. Fastigheten nås enkelt på ca 25 min från Landvetter Flygplats. Borås Centrum nås på ca 10 min.
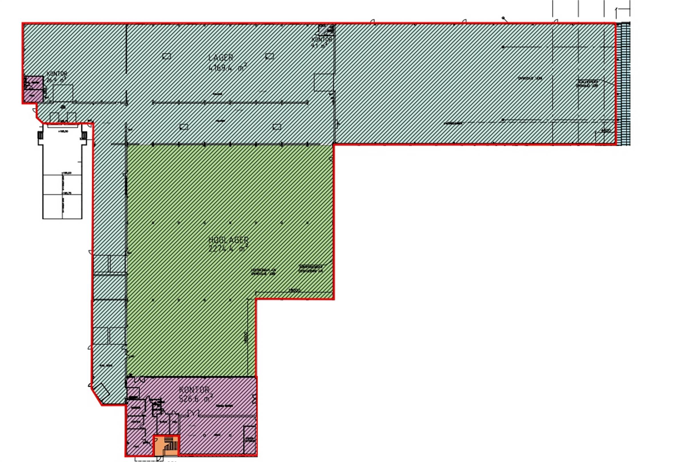
Planlösning
Lager med tillhörande kontor.
Lagerdelen om ca 6 500 kvm har en takhöjd från 3,9 m till 9,5 m under balk och är försedd med sprinkler. Det finns 3 st lasthus (B:3 m H:3 m) samt 2 st markportar (B:3,9 m H:3,9 m). Möjlighet att bygga ytterligare ca 2 000 Kvm till.
Kontoret om ca 500 kvm är i entréplan och har både öppen planlösning, enstaka mindre kontorsrum samt konferens, kök och allmänytor.
Fastigheten, som ligger på en inhägnad gård med hög säkerhet, har en tillhörande markyta om ca 2 500 kvm som går att tilläggshyra.
Fastigheten är utrustad med fibernät.
Annonsinformation
Publicerad: 2025-10-09
Objektsnummer: 41992793






