Produktionslokal, Älvvägen 11, Ale, Älvängen
- 303 m²
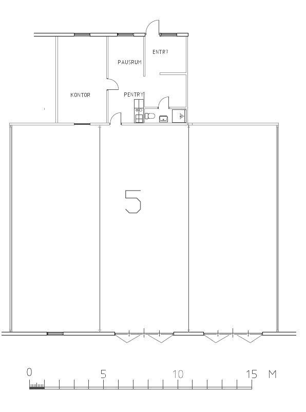
Lokalens egenskaper: Här erbjuds en mellanstor och flexibel lokal som passar utmärkt för näthandel, lager, produktion eller lätt industri. Lokalen b
Om lokalen
- Lokaltyper
- Produktionslokal / Verkstad
- Total yta
- 303 m²
- Adress
- Älvvägen 11
- Område
- Ale
- Kommun
- Ale kommun
- Hiss
- Nej
- Objektsnummer
- 41995606
Beskrivning
Lokalens egenskaper:
Här erbjuds en mellanstor och flexibel lokal som passar utmärkt för näthandel, lager, produktion eller lätt industri. Lokalen består av en stor öppen lager-/produktionsyta om ca 252 kvm samt ett effektivt kontor om ca 51 kvm.
Lokalen kommer att byggas om/renoveras innan inflyttning, där sista bilden visar framtida standard. Det finns även möjlighet att få fiberanslutning. Nuvarande hyresgäst kan eventuellt lämna pallställage om det är av intresse.
I området finns dessutom en truck som kan nyttjas gratis för hyresgäster, samt en gemensam tryckluftsanläggning som ingår i hyran.
Observera att lokalen inte hyrs ut till bil- eller MC-försäljning eller fordonsverkstad.
Område:
Lokalen är belägen i ett verksamhetsområde med närhet till Älvängen, där ni har tillgång till restauranger, bank och butiker inom några kilometer. För den som uppskattar natur finns även närhet till Ale Vikingagård och grönområden i omgivningen. I närområdet finns verksamheter som exempelvis Ale Bilcenter och Jysk.
Kommunikationer:
Mycket god tillgänglighet med E45 i direkt anslutning, vilket ger smidiga transporter och bra logistik för både leveranser och personal. Lokalen har även bra skyltläge mot E45 och nås enkelt via avfart Älvängen Södra. Även kollektivtrafik finns som alternativ för pendling.
Snabbfakta:
• Lager/produktion ca 252 kvm
• Kontor ca 51 kvm
• Totalt ca 303 kvm
• Passar näthandel, lager och produktion
• Renoveras/byggs om innan inflytt
• Fiber kan ordnas
• Tryckluftsanläggning ingår
• Truck finns gratis i området
• P-platser finns
• Skyltläge mot E45
• Bilrelaterad verksamhet ej önskvärd
Har ni frågor eller vill ni boka tid för en visning?
Välkommen att kontakta oss på 031-3504900 eller hej@loqalo.se!















