Girovägen 13, Veddesta, Järfälla
Mileway Sweden AB
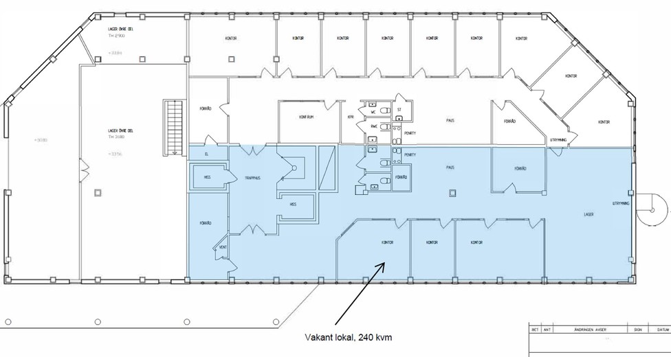
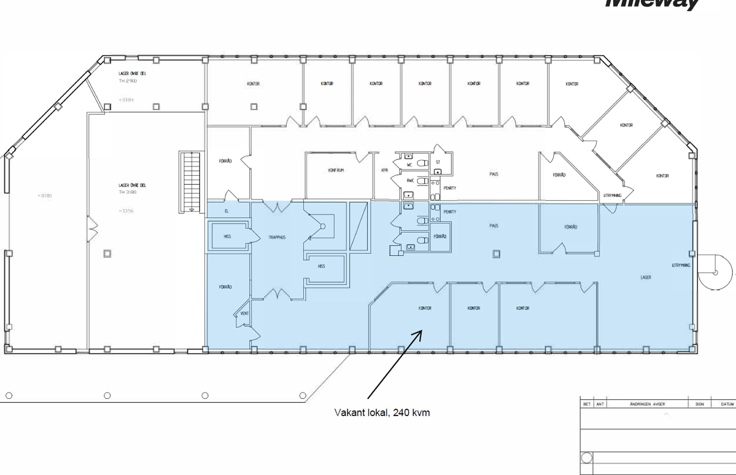
Annons max40–240 m²
Hyra: Ej angiven
Tillträde: Omgående
Representativa kontorslokaler i flexibel storlek – fri parkering ingår
Flexibla kontorsrum i modern kontorsbyggnad – från 40 till 240 kvm
Nu finns möjlighet att hyra kontorsrum i en ljus och trevlig kontorsmiljö på plan två i en representativ kontorsbyggnad med totalt sex våningar. Här erbjuds flexibla ytor från ca 40 kvm upp till 240 kvm (halva våningsplanet), anpassade för både små och större företag.
Lokalerna har en kontorsindelad planlösning med stora fönsterpartier som ger rikligt med dagsljus. Fulla faciliteter ingår såsom pentry, WC samt tillgång till gemensamma ytor. Lokalerna är anpassningsbara efter behov och kan delas av utifrån önskad storlek.
Fastigheten ligger inom ett inhägnat område som låses nattetid för ökad säkerhet. Fri parkering finns i direkt anslutning till byggnaden.
Veddesta industriområde ligger i Järfälla cirka 20 kilometer norr om centrala Stockholm med strategisk placering alldeles intill E18, vilket ger en smidig access till såväl Stockholm som Västerås och Uppsala. Järfälla kommun är en av de mest expansiva i Stockholmsområdet och stor utveckling väntas av detta område som idag präglas av en stor variation av verksamheter, industrier och bostäder. Stort serviceutbud finns inom nära räckhåll i Barkarby handelsområde och Jakobsbergs centrum. Det finns goda kollektivtrafikförbindelser med pendeltåg och buss till Veddesta och centrala Stockholm (på sikt även tunnelbana).
Dokument
Egenskaper
Om lokalen
- Kommun
- Järfälla kommun
- Byggår
- 1964
- Hiss
- Ja
- Våning
- 1
- Tillträde
- Omgående
- Objektsnummer
- 41975147
Kommunikationer
Goda kollektivtrafikförbindelser med pendeltåg och buss till Veddesta och centrala Stockholm (på sikt även tunnelbana)
Planlösning
Se planritning bland bilder.
Parkering
Förhyrd parkering finns att tillgå
Service
Med närhet till brett serviceutbud i Barkarby handelsområde och Jakobsbergs centrum
Vägbeskrivning
Direkt anslutning till E18
Närliggande företag
Stena Recyckling AB, Swedol, Mekonomen, Beijer Byggmaterial och NetOnNet














