Norgegatan 1, Västerort, Kista
Locus Advice
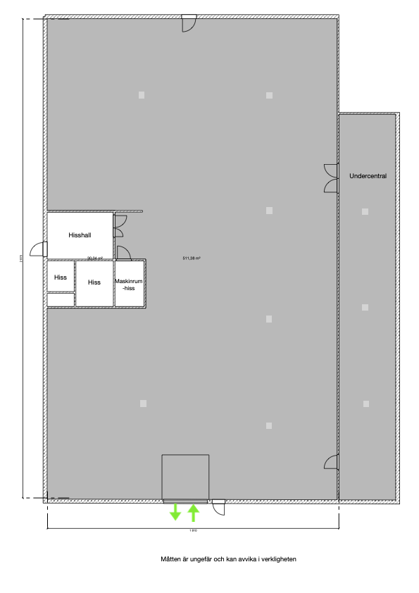
Annons plus511 m²
Hyra: Ej angiven
Tillträde: Ej angivet
Nyrenoverat garage/lager om ca 511 kvm – centrala Kista
Endast ett par hundra meter från Kista Centrum och T-bana. Elgarageport, lastkaj, hiss och omklädningsrum. Perfekt för bilverkstad, lager, proffsbutik eller fordonsförsäljning. Mycket fint skick och attraktivt läge med snabb access till E4/E18.
Lokaltyper
Typ: Butikslokal, Produktionslokal, Lagerlokal, Övrig lokal
Minsta storlek: 511 m²
Största storlek: 511 m²
Övrig information
Nu finns möjlighet att hyra ett nyrenoverat garage om ca 511 kvm i mycket fint skick, beläget endast ett par hundra meter från Kista Centrum och tunnelbanan.
Lokalen lämpar sig väl för exempelvis:
Bilverkstad
Lagerverksamhet
Fordonsförsäljning
Proffsbutik
Service- och installationsverksamhet
Garaget är funktionellt utformat och utrustat med:
Elgarageport
Lastkaj
Hiss
Omklädningsrum
Goda manöverytor
Fastigheten har mycket bra kommunikationer med närhet till Kista Centrum, tunnelbana samt smidig access till E4 och E18.
Ett attraktivt och centralt läge i ett av Stockholms mest strategiska företagsområden.
Tillträde enligt överenskommelse.
Vänligen respektera säljarens / hyresvärdens önskemål om bokad visning.
För mer information eller visning av objektet, hör av er till Locus Advice genom kontaktformuläret eller ring Tim Ringdahl Liljegren på tel 08-558 094 41.
Växeln är öppen helgfria vardagar mellan 08.30-17.00
Locus Advice tel 08-558 094 40
Locus Advice är ett fastighetskonsultbolag med fokus på kommersiella fastigheter och lokaler.
Vi arbetar med
Lokaluthyrning
Lokalöverlåtelser
Fastighetsöverlåtelse
Transaktionsrådgivning
Värdering
Projektledning
Vi representerar även hyresgäster som vill ha hjälp med sitt lokalsökande.
Genom etablerade samarbeten med både stora och små fastighetsägare har vi tillgång till ett stort utbud av lokaler utöver vad vi kan marknadsföra i vår egen regi. Via dessa samarbeten kan vi med stor sannolikhet hjälpa er hitta den lokal ni söker efter.
Annonsinformation
Publicerad: 2026-02-24
Objektsnummer: 41996888









