Kontor, Hulda Lindgrens gata 8, Södra Göteborg, Göteborg
- 194 m²
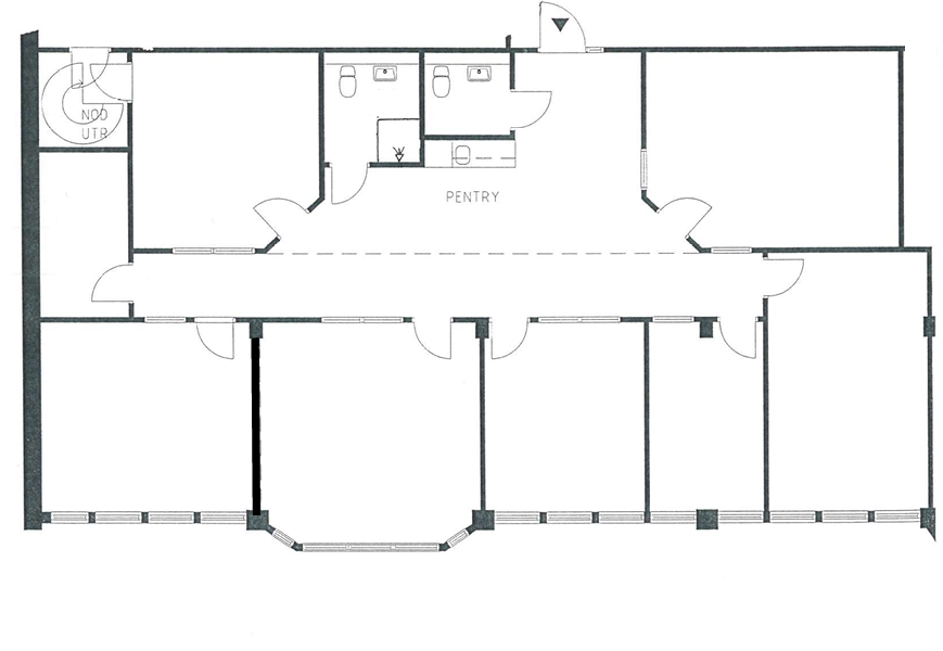
Lokalens egenskaper: Välkommen till Hulda Lindgrens gata 8! Här erbjuds en trivsam kontorslokal om 194 kvm med en genomtänkt och funktionell planlös
Om lokalen
- Lokaltyp
- Kontor
- Total yta
- 194 m²
- Adress
- Hulda Lindgrens gata 8
- Område
- Södra Göteborg
- Kommun
- Göteborgs kommun
- Hiss
- Nej
- Objektsnummer
- 41994808
Beskrivning
Lokalens egenskaper:
Välkommen till Hulda Lindgrens gata 8! Här erbjuds en trivsam kontorslokal om 194 kvm med en genomtänkt och funktionell planlösning. Kontoret ligger en trappa upp i byggnaden och nås enkelt via trappa eller hiss.
Lokalen består av fem kontorsrum i varierande storlek samt två konferens-/mötesrum, vilket skapar goda förutsättningar för både fokusarbete och kund- eller teammöten. Här finns även pentry, en centralt placerad pausyta samt förråd. Gott om fönster ger ett fint ljusinsläpp och en behaglig arbetsmiljö.
Kontoret har fiberanslutning och ett trivsamt klimat med kyld tilluft. Det finns även möjlighet att hyra till förråd om 10 eller 21 kvm.
På fastigheten finns bra parkeringslösningar: möjlighet att hyra garageplats i varmgarage (hiss upp till lokalen) samt parkeringsplatser med elbilsladdning.
Område:
Högsbo är ett etablerat och centralt beläget område i Göteborg med närhet till Söderleden och Dag Hammarskjöldsleden. Här finns ett stort utbud av lunchrestauranger och med närheten till köpcentrum 421 får ni tillgång till ett brett utbud av butiker och övrig service.
Kommunikationer:
Kommunikationerna är goda. Busshållplats finns på Amalia Jönssons gata och linjerna 758 och 82 trafikerar området, vilket gör det smidigt att ta sig till och från kontoret.
Snabbfakta:
• Adress: Hulda Lindgrens gata 8
• Område: Högsbo
• Yta: 194 kvm
• Våningsplan: 1 trappa upp (hiss finns)
• 5 kontorsrum + 2 konferens-/mötesrum
• Pentry, centralt placerad pausyta och förråd
• Gott om fönster och bra ljusinsläpp
• Fiberanslutning
• Bra inomhusklimat med kyld tilluft
• Möjlighet att hyra till förråd: 10 eller 21 kvm
• Parkering på fastigheten, varav 14 platser med elbilsladdare
• Möjlighet till garageplats i varmgarage samt cykelparkering i garage/utomhus
• Buss: linje 758 och 82 (hållplats Amalia Jönssons gata)
Har ni frågor eller vill ni boka tid för visning?
Välkomna att kontakta oss på 031-350 49 00 eller hej@loqalo.se!













