Kontorshotell, Vargmötesvägen 4, Vallentuna Norra, Vallentuna
- 60 m²
- 1 rum
- Omgående
Ljust och mångsidigt kontorsrum med härligt ljusinsläpp – perfekt för både kontor och lättare produktion!
Om lokalen
- Lokaltyper
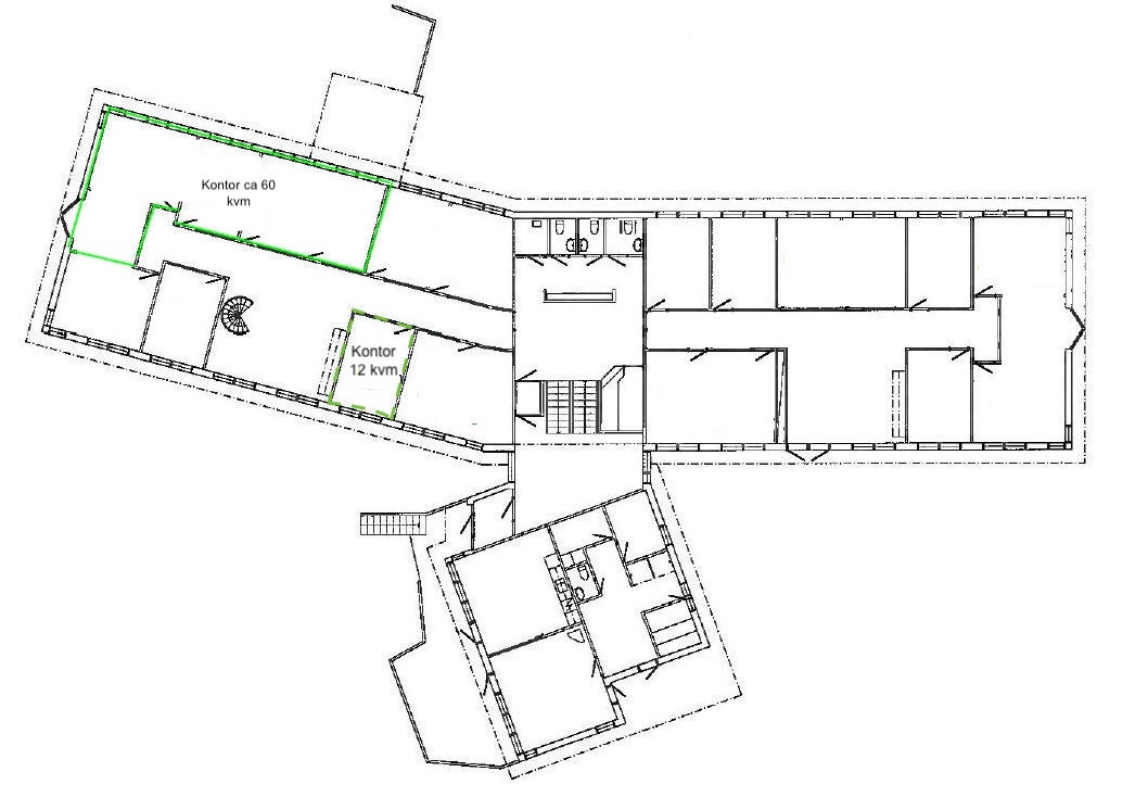
- Kontorshotell / Kontor / Kontor / Lager
- Total yta
- 60 m²
- Adress
- Vargmötesvägen 4
- Område
- Vallentuna Norra
- Kommun
- Vallentuna kommun
- Byggår
- 1988
- Renoveringsår
- 2023
- Hiss
- Ja
- Tillgänglighet
- HWC / Hiss
- Våning
- 2/2
- Antal rum
- 1
- Tillträde
- Omgående
- Ingår i hyra
- 1 600 kr/m²/år. Hyra: 8000 kr/mån exkl. moms. I hyran ingår fas
- Objektsnummer
- 41988983
Beskrivning
Välkommen till ett trevligt och funktionellt kontorsutrymme med generöst ljusinsläpp från flera fönster som vetter mot både parkering och en grönskande allmänning bakom huset. Här får du en arbetsmiljö som kombinerar komfort med flexibilitet – idealisk för kontorsverksamhet, enklare produktion eller smart förvaring.
Lokalen är en del av en fräsch och välskött fastighet med tillgång till gemensamma utrymmen såsom fullt utrustat kök, konferensrum, dusch och en solig terrass – perfekt för lunchpausen eller eftermiddagsfikat i solen.
Bekvämligheter som hiss, HWC och smidigt lastintag via byggnadens gemensamma lastentré gör vardagen enkel och effektiv. Här får du en arbetsplats som både inspirerar och underlättar!
Omgivning
Fastigheten har ett lugnt läge i området med andra verksamhetslokaler, främst inom kontor som närmaste grannar.
Kommunikationer
Vallentuna station ca 2,4 kilometer bort med Roslagsbana hela vägen genom Täby till Stockholm Östra/Tekniska Högskolan. Vid Tallhammarsvägens busshållplats ca 100 meter bort hittar du bl. a linje 524 och 660 & 663 med bussar till Arninge, Upplands-Väsby samt Vallentuna station, den sista en resa på ca 4 minuter. Med bil tar man sig till centrala Stockholm samt Arlanda på ca 30 minuter.
Parkering
Ja
Service
Vallentuna Centrum som ligger ca 2 kilometer bort har all tänkbar service som kan önskas.
Vägbeskrivning
Parkering ingår för hyresgäst och besök runt huset.
Närliggande företag
Ljus och Kraft i Vallemtuna AB, Bygren Bygg AB m.fl.
Uppvärmning
Vattenburen värme
Övrigt
Konferenslokal finns att boka kostnadsfritt för hyresgäster i huset.
Hyra: 8000 kr/mån exkl. moms. I hyran ingår fastighetsskatt, el och värme samt internet.

















