Spisvägen 6, Torsvik, Jönköping
Mileway Sweden AB
Annons max10 525–52 989 m²
Hyra: 475 kr/m²/år
Tillträde: Omgående
Flexibla logistiklokaler i Torsvik – upp till 53 000 kvm på strategiskt läge
Etablera din logistikverksamhet i Torsvik i våra inflyttningsklara och delvis nyrenoverade lokaler. Här finns en total yta på cirka 53 000 kvm, som kan hyras som en enhet eller delas upp efter önskemål. Se förslag på uppdelning i tre flexibla enheter från 10 525 kvm till 15 901 kvm.
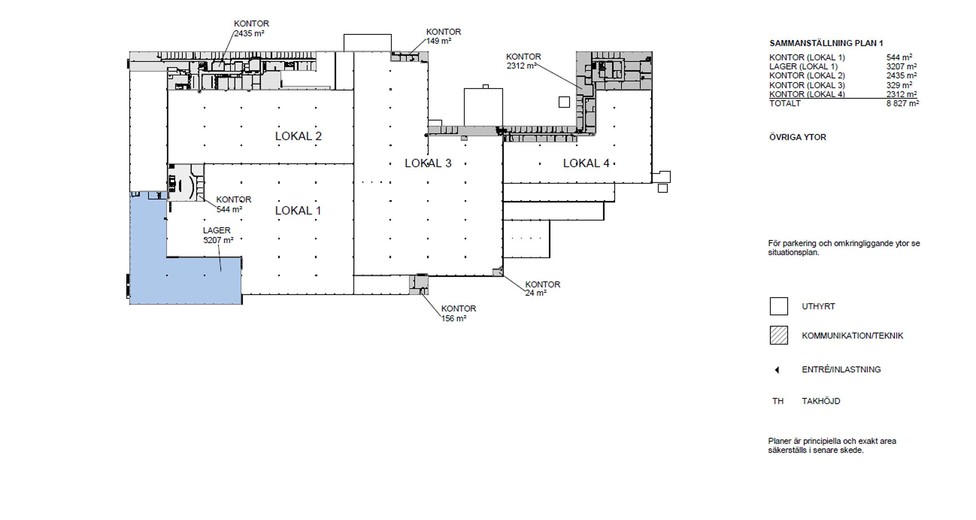
Lokal 1 - 15 901 kvm
• Lageryta: 15 314 kvm
• Kontor/övrigt: 587 kvm
• Upp till 10 lasthus
Lokal 2 - 12 685 kvm
• Lageryta: 9 961 kvm
• Kontor/övrigt: 2 724 kvm
• Upp till 12 lasthus
Lokal 3 - 13 878 kvm
• Lageryta: 13 395 kvm
• Kontor/övrigt: 483 kvm
• Upp till 6 lasthus
Lokal 4 - 10 525 kvm
• Lageryta: 7 820 kvm
• Kontor/övrigt: 2 705 kvm
• Upp till 8 lasthus
Fastigheten erbjuder upp till 36 lasthus för smidig in- och utlastning, en imponerande takhöjd på sju meter och en golvkapacitet på 10 ton/kvm. Samtliga enheter har tillhörande kontors- och personalutrymmen med pentry, matsal, omklädningsrum, dusch och WC.
Fastigheten är idealisk för framtida expansion, med möjligheter att utöka lokalerna och ansluta järnvägsspår för effektiv logistikhantering.
Strategiskt läge i Torsvik
Belägen i Torsvik, 12 kilometer söder om centrala Jönköping, erbjuder fastigheten ett av Sveriges bästa logistiklägen med direkt anslutning till E4. Detta ger optimala transportförbindelser till hela Sverige. Området präglas av både större och mindre logistikföretag, och service finns i närheten, med ett ännu större utbud bara tio minuter bort i Jönköpings centrum. Goda kollektivtrafikförbindelser till centrala Jönköping finns också.
Denna fastighet är perfekt för industri-, lager- och logistikverksamheter. Upptäck potentialen och skapa en skräddarsydd lösning för din verksamhet!
Lokaltyper
Typ: Kontor, Lagerlokal, Verkstad
Minsta storlek: 10525 m²
Största storlek: 52989 m²
Våningsplan: 1
Fastighet
Fastighetsbeteckning: Flahult 21:50
Byggnad
Byggår: 1974
Egenskaper
Villkor lokal
Hyra: 475 kr/m²/år
Tillträde: Omgående
Omgivning
Parkeringsmöjlighet: Stor parkering
Närservice: Stort serviceutbud inne i centrala Jönköping cirka tio minuters bilfärd bort
Företag i närheten: PostNord TPL, UPS, Bring, Elgiganten Logistik och Dagab
Vägbeskrivning: Direkt anslutning till E4
Kommunikation
Kollektivtrafikförbindelser med buss till centrala Jönköping
Planlösning
Se planritning bland bilder eller PDF för fullständigt underlag.
Annonsinformation
Publicerad: 2024-04-26
Objektsnummer: 41975219
























