Verkstad, Mått Johanssons väg 16, Väster, Eskilstuna
- 195 m²
- Enligt överenskommelse
Lokal om 195 kvadratmeter med öppen och pelarfri yta, stor port och generös takhöjd belägen på innergård med möjligheter till utvändig uppställning.
Om lokalen
- Lokaltyper
- Verkstad / Lagerlokal
- Total yta
- 195 m²
- Adress
- Mått Johanssons väg 16
- Område
- Väster
- Kommun
- Eskilstuna kommun
- Byggår
- 1967
- Tillträde
- Enligt överenskommelse
- Objektsnummer
- 41992568
Beskrivning
Lokal om 195 kvadratmeter med öppen och pelarfri yta, stor port och generös takhöjd belägen på innergård med möjligheter till utvändig uppställning.
Lokalen är belägen på innergård med Mått Johanssons väg som infart. E20 och stadskärnan nås inom cirka 5 minuter med bil.
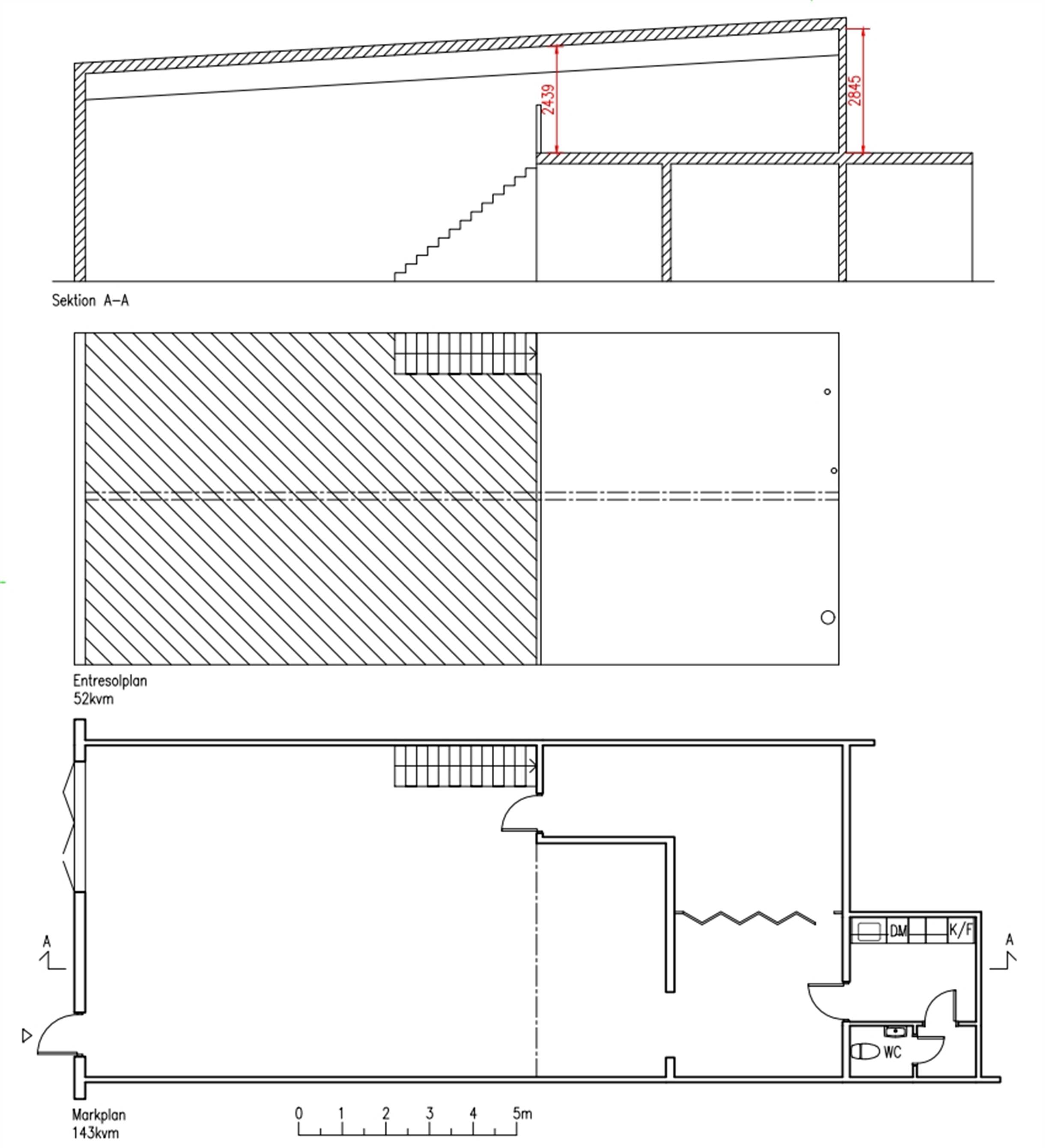
Lokalen inleds med en stor port om 3 x 3 meter (bredd x höjd) och en öppen samt pelarfri yta om cirka 95 kvadratmeter. Entresolplan om cirka 52 kvadratmeter. Resterande ytor består av kontorsrum, pentry och WC.
Sammanfattning
• Beläget i ett etablerat industriområde cirka 5 min från centrum och E20
• Industriport: 3 x 3 (bredd x höjd)
• Entresolplan om cirka 52 kvm
• Öppen lageryta om cirka 95 kvm
• Pentry, kontorsrum och WC finns
Kommunikationer
Busshållsplats finns bredvid byggnaden
Parkering
Parkering finns i innergården.
Service
Cirka 3 minuter med bil till Västerleden där bland annat restauranger som Timjan, Max, McDonalds, ChopChop och Burger King finns.
Skyltläge
Utmärkta skyltmöjligheter riktad mot Mått Johanssons väg (Daglig fordons volym på cirka 15,000)
Närliggande företag
Jysk, Ahlsell, Swedol. LGL Autoexpoerten, m.fl.
Uppvärmning
Fjärrvärme








