Kontor / Lager, Hantverksvägen 1, Södra Göteborg, Askim
- 558 m²
Lokalens egenskaper: Nu har ni chansen att hyra en flexibel och välplanerad lokal om 558 kvm i Sisjöns populära industri- och handelsområde – perfek
Om lokalen
- Lokaltyp
- Kontor / Lager
- Total yta
- 558 m²
- Adress
- Hantverksvägen 1
- Område
- Södra Göteborg
- Kommun
- Göteborgs kommun
- Hiss
- Nej
- Objektsnummer
- 41994562
Beskrivning
Lokalens egenskaper:
Nu har ni chansen att hyra en flexibel och välplanerad lokal om 558 kvm i Sisjöns populära industri- och handelsområde – perfekt för butik, showroom, verkstad eller kontor. Lokalen erbjuder generösa ytor och en takhöjd på cirka 5 meter, vilket skapar luft och goda förutsättningar för volymkrävande verksamheter.
Den tillhörande utomhusytan om cirka 600 kvm ger utmärkt möjlighet för angöring, uppställning eller extra verksamhetsyta. Parkeringen på framsidan gör det enkelt för både kunder och personal att ta sig till lokalen.
Butiksdelen har en takhöjd på cirka 2,3–2,6 meter, vilket ger en trivsam och funktionell miljö för showroom, kundytor eller försäljning.
Lokalen är utrustad med säkerhetsglas, fiberanslutning, två portar samt en 2-tons travers – idealiskt för smidig logistik och verksamheter med behov av lyft, hantering och säker drift.
Område:
Fastigheten ligger i prisade och expansiva Sisjön, ett av Västsveriges starkaste områden för handel, lätt industri och showroomverksamheter. Här har man direkt närhet till Sisjöns stora utbud av restauranger, caféer, butiker och service, vilket gör det enkelt att kombinera arbetsdagens behov med praktiska lösningar.
Området är känt för sin goda tillgänglighet, attraktiva företagsklimat och höga kundflöden – en strategiskt stark placering för företag som vill synas och växa.
Kommunikationer:
Kommunikationerna i Sisjön är mycket goda, med snabb anslutning till Söderleden, Västerleden och Dag Hammarskjöldsleden. Detta ger smidig åtkomst till hela Göteborg, Frölunda, Mölndal och regionens större trafikleder.
Kollektivtrafiken är väl utbyggd med bussförbindelser på gångavstånd, vilket gör pendlingen enkel för personal och besökare. Goda parkeringsmöjligheter finns dessutom direkt vid lokalen.
Snabbfakta:
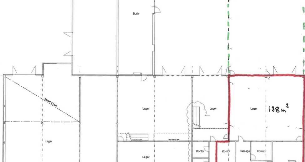
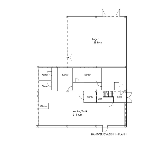
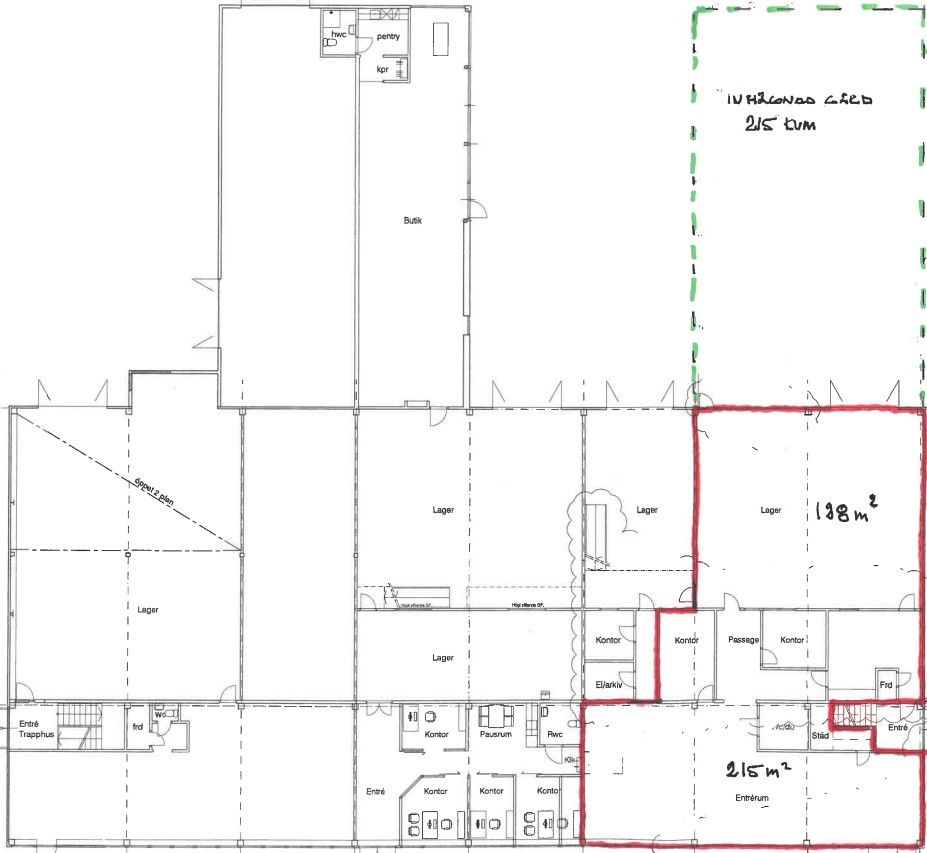
• Total yta: 558 kvm
• Takhöjd ca 5 m (butiksdel 2,3–2,6 m)
• Utomhusyta ca 600 kvm
• Två portar och 2-tons travers
• Säkerhetsglas och fiberanslutning
• Parkering på framsidan
• Perfekt för butik, showroom, kontor eller verkstad
• Nära Sisjöns centrum och omfattande service
• Mycket goda kommunikationer och access till stora leder
Har ni frågor eller vill ni boka tid för en visning? Välkommen att kontakta oss på 031-3504900 eller hej@loqalo.se
Karta
Bilder på lokalen
Hantverksvägen 1 Hantverksvägen 1 Hantverksvägen 1 Hantverksvägen 1 Hantverksvägen 1 Hantverksvägen 1 Hantverksvägen 1 Hantverksvägen 1 Hantverksvägen 1 Hantverksvägen 1 Hantverksvägen 1 Hantverksvägen 1 Hantverksvägen 1 Hantverksvägen 1 Hantverksvägen 1 Hantverksvägen 1 Hantverksvägen 1 Hantverksvägen 1 Hantverksvägen 1 Hantverksvägen 1 Hantverksvägen 1 Hantverksvägen 1 Hantverksvägen 1 Hantverksvägen 1 Hantverksvägen 1 Hantverksvägen 1 Hantverksvägen 1 Hantverksvägen 1 Hantverksvägen 1 Hantverksvägen 1































