Kontor, Österväg 21, Centrum, Visby
- 107 m²
- Enligt överenskommelse
Kontorslokal med terrass vid Österport
Om lokalen
- Lokaltyper
- Kontor / Kontorshotell
- Total yta
- 107 m²
- Adress
- Österväg 21
- Område
- Centrum
- Kommun
- Gotlands kommun
- Renoveringsår
- 0
- Hiss
- Nej
- Våning
- 2
- Tillträde
- Enligt överenskommelse
- Objektsnummer
- 41994501
Beskrivning
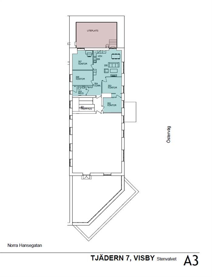
Denna trevliga lokal om 107 kvm erbjuder fyra separata kontorsrum, perfekt för både individuellt arbete och mindre team. Här finns även ett fullutrustat kök samt ett pausrum där ni kan koppla av och umgås under arbetsdagen. Lokalen har såklart även en fräsch WC och dusch. Dessutom ingår en terrass om cirka 40 kvm – ett trevligt tillskott som kan användas för kortare pauser eller informella möten när vädret tillåter.
Lokalen har ett strategiskt läge, bara ett stenkast från ringmuren, med matbutiker, restauranger och gym inom bekvämt räckhåll.
Varmt välkommen att höra av dig så berättar vi mer!
Omgivning
Fastigheten ligger precis utanför Österport, i korsningen mellan Österväg och Norra Hansegatan. I området finns all önskvärd service i form av affärer, restauranger och bussterminal med avgångar till Fårö och Tofta. Att promenera till citykärnan i Visby tar ca 10 minuter, till färjeterminalen ca 20 minuter och till flygplatsen är det 10 minuters resa med bil eller buss.
Kommunikationer
Ett av Visbys bästa lägen att nå med buss, bil och nära till taxistation. Goda kommunikationer till bl.a. Fårö och Tofta samt nära till både färja och flygplats.
Planlösning
- Fyra kontorsrum
- Pausrum
- Fullutrustat kök
- WC med dusch
- Stor terrass
Parkering
Gott om parkeringsplatser i anslutning till fastigheten med möjlighet att betala per timme eller månadsvis.
Service
Då fastigheten ligger i Centrala Visby är det promenadavstånd till all tänkbar service.







