Bjällbrunnavägen , 17, Norrköping
Björkspinnaren 3 AB
Annons plus100 m²
Hyra: 11900 kr/m²/år
Tillträde:
Flexibel och attraktiv verksamhetslokal i markplan
Denna lokal erbjuder generösa ytor, smarta lösningar och moderna faciliteter.
Lokalens egenskaper:
Två plan – Effektiv utnyttjande av ytan, med möjligheter att separera produktionsutrymmen och kontorsområden för ökad funktionalitet.
Kök – Fullt utrustat kök för personalen, vilket gör det lätt att hantera pauser och måltider under arbetsdagen.
WC och dusch – Bekvämligheter som underlättar för personalens komfort och hygien, idealiskt för både kontor och industriell verksamhet.
Vikbara portar – Flexibilitet för lastning och lossning, vilket underlättar transport och ger enkel tillgång till lokalen.
Trappa upp – En funktionell trappa som förbinder de två planen, vilket gör att du kan nyttja hela ytan på ett effektivt sätt.
Flexibel användning – Lokalen passar för såväl industriell verksamhet, butik, lager, kontor, som verkstad.
Anpassningsbar planlösning – Stora öppna ytor som kan omformas och anpassas till din verksamhets krav.
Denna lokal erbjuder en praktisk och mångsidig arbetsmiljö med bra tillgång till viktiga transportleder och ett läge som ger ditt företag god synlighet och tillväxtmöjligheter.
Om fastigheten
- Kommun
- Norrköpings kommun
- Byggår
- 2026
- Tillgänglighet
- Augusti 2026
- Våning
- 2
- Antal rum
- 2
- Takhöjd
- 500 cm
- Objektsnummer
- 41998529
Omgivning
Du hittar många olika företag, en skola och åkrar och skog i närheten.
Kommunikationer
Busslinje utanför
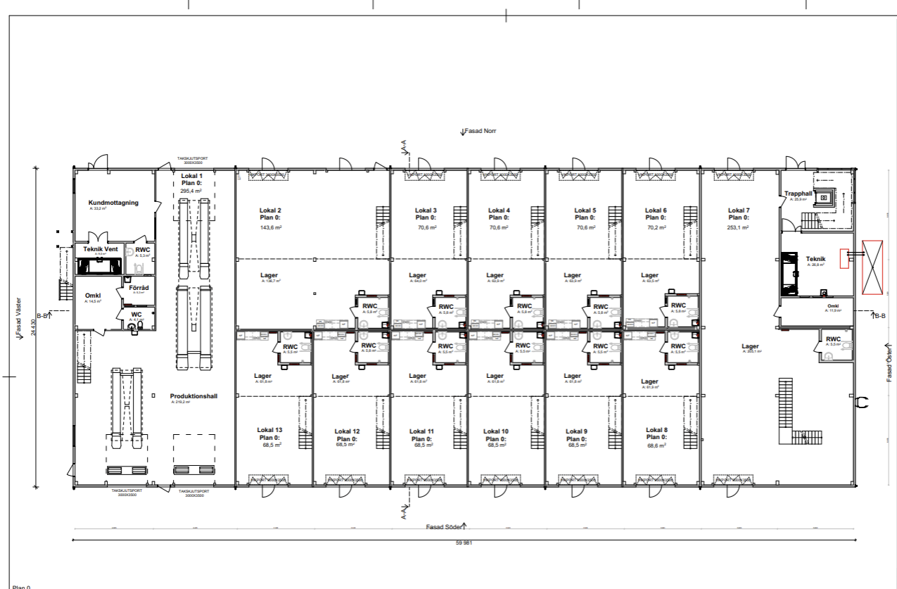
Planlösning
Bottenplan är på 70kvm, med kök, wc och dusch. Entresol 30kvm på övreplan.
Parkering
Ja
Service
Fastigheten ligger i närhet till både Ica Smedby, Coop Risängen och tankstationer. Thaimat resturang precis bredvid. Och flygplatsen mitt emot.
Skyltläge
Ditt företag har en perfekt plats för skylt möjlighet på byggnaden, vid arkösundsvägen.
Närliggande företag
Ni hittar Fridströms måleri, Meca, Berqvist och många andra olika företag som ligger på samma område.
Uppvärmning
Fjärrvärme
Beskrivning
Denna lokal erbjuder generösa ytor, smarta lösningar och moderna faciliteter.
Lokalens egenskaper:
Två plan – Effektiv utnyttjande av ytan, med möjligheter att separera produktionsutrymmen och kontorsområden för ökad funktionalitet.
Kök – Fullt utrustat kök för personalen, vilket gör det lätt att hantera pauser och måltider under arbetsdagen.
WC och dusch – Bekvämligheter som underlättar för personalens komfort och hygien, idealiskt för både kontor och industriell verksamhet.
Vikbara portar – Flexibilitet för lastning och lossning, vilket underlättar transport och ger enkel tillgång till lokalen.
Trappa upp – En funktionell trappa som förbinder de två planen, vilket gör att du kan nyttja hela ytan på ett effektivt sätt.
Flexibel användning – Lokalen passar för såväl industriell verksamhet, butik, lager, kontor, som verkstad.
Anpassningsbar planlösning – Stora öppna ytor som kan omformas och anpassas till din verksamhets krav.
Denna lokal erbjuder en praktisk och mångsidig arbetsmiljö med bra tillgång till viktiga transportleder och ett läge som ger ditt företag god synlighet och tillväxtmöjligheter.




