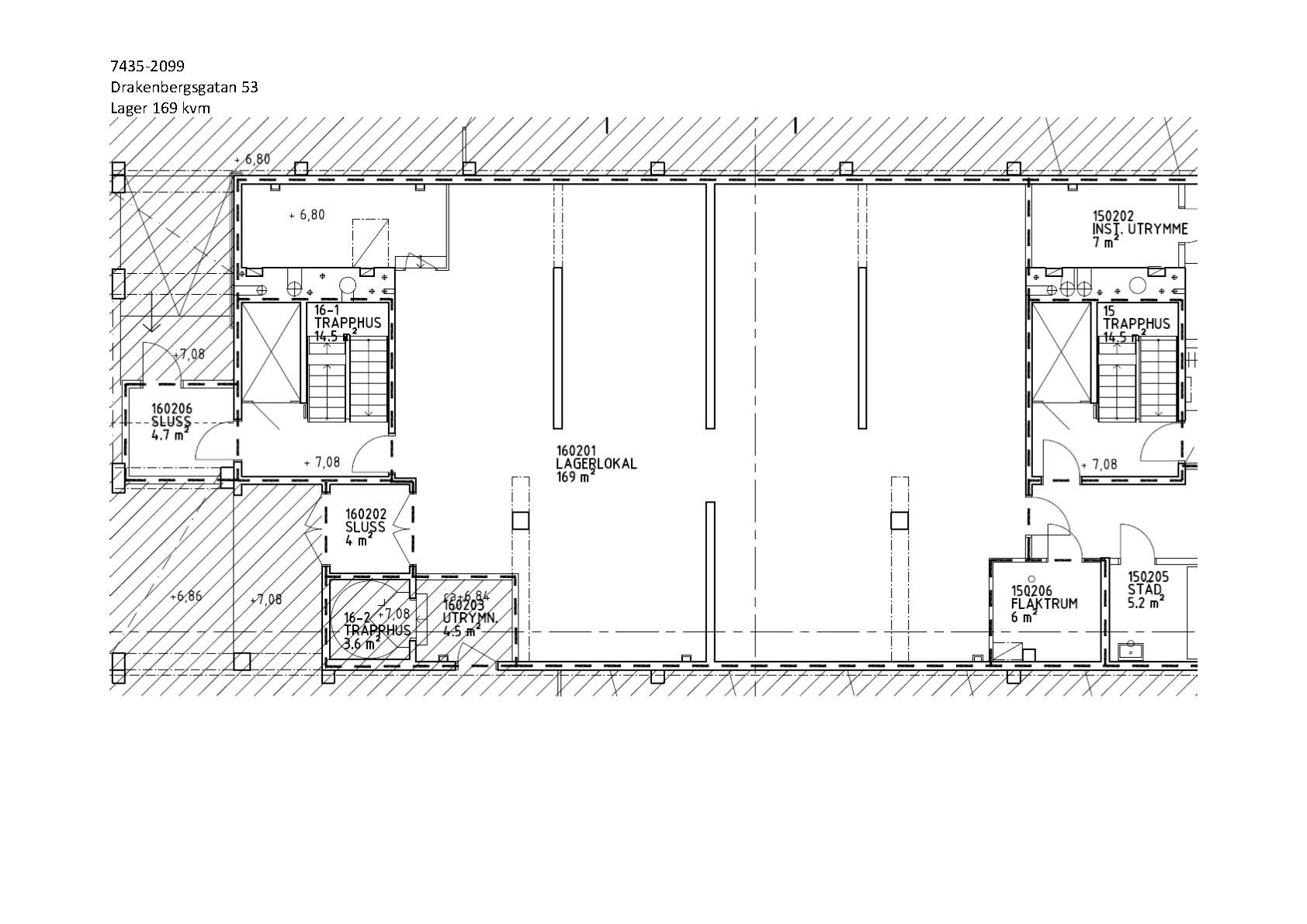
Lagerlokal, Drakenbergsgatan 53, Södermalm, Stockholm
- 169 m²
- 1 rum
- Enligt överenskommelse
- 16 196 kr/mån
Lager 169 m² – Hornstull / Södermalm
Om lokalen
- Lokaltyper
- Lagerlokal / Övrig lokal / Verkstad / Logistiklokal
- Total yta
- 169 m²
- Adress
- Drakenbergsgatan 53
- Område
- Södermalm
- Kommun
- Stockholms kommun
- Våning
- KV
- Antal rum
- 1
- Tillträde
- Enligt överenskommelse
- Objektsnummer
- 41994313
- Hyra
-
16 196 kr/mån
1 150 kr/m²/år
Beskrivning
Rymlig lagerlokal på källarplan med egen ingång via Drakenbergsgaraget på Drakenbergsgatan 53. Smidig in- och utlastning via dubbeldörrar; tillfartens takhöjd i garaget är cirka 1,90–2,00 m.
Lokal om ca 169 m² med säkerhetsdörr och egen WC. Månadsyra uppgår till 16 195 kr / månad. Årshyra ca 194 350 kr/år (cirka 1 150 kr/m²/år). Tillträde enligt överenskommelse. Våningsplan: källare.
Läget intill Tantolunden i Hornstull ger centralt logistikt läge med goda kommunikationer och närservice. Tunnelbana och bussar vid Hornstull nås inom några minuter till fots, och huvudlederna i innerstan nås snabbt för smidiga transporter.
Planlösningen erbjuder öppna, lättmöblerade ytor som lämpar sig för lager, förråd eller enklare verkstadsverksamhet. Egen ingång via garaget och breda dubbeldörrar förenklar hantering av gods. Takhöjd i garaget cirka 1,90–2,00 m.
Boka visning eller skicka intresseanmälan till Bojan Babic.
Omgivning
Läget intill Tantolunden i Hornstull ger centralt logistikt läge med goda kommunikationer och närservice.
Kommunikationer
Tunnelbana och bussar vid Hornstull nås inom några minuter till fots, och huvudlederna i innerstan nås snabbt för smidiga transporter.
Planlösning
Planlösningen erbjuder öppna, lättmöblerade ytor som lämpar sig för lager, förråd eller enklare verkstadsverksamhet. Egen ingång via garaget och breda dubbeldörrar förenklar hantering av gods. Takhöjd i garaget cirka 1,90–2,00 m.
Service
Läget intill Tantolunden i Hornstull ger centralt logistikt läge med goda kommunikationer och närservice.
Vägbeskrivning
Huvudlederna i innerstan nås snabbt för smidiga transporter.
Närliggande företag
Läget intill Tantolunden i Hornstull ger centralt logistikt läge med goda kommunikationer och närservice.







