Kontor / Lager, Bangårdsvägen 21, Mölndal, Kållered

  • 59–259 m²

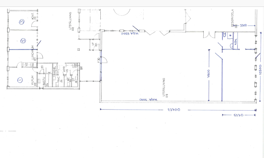
Lokalens egenskaper: Välplanerad och funktionell kombilokal om totalt ca 259 kvm, där cirka 200 kvm utgör lagerdel med hög bärighet (bottenplatta ca

Om lokalen

Lokaltyp
Kontor / Lager
Total yta
59–259 m²
Adress
Bangårdsvägen 21
Område
Mölndal
Kommun
Mölndals kommun
Hiss
Nej
Objektsnummer
41994609

Beskrivning

Lokalens egenskaper:
Välplanerad och funktionell kombilokal om totalt ca 259 kvm, där cirka 200 kvm utgör lagerdel med hög bärighet (bottenplatta ca 30 cm) och en generös port om ca 4 x 4 meter. Lokalen erbjuder även dusch och wc, samt en kontorsdel om ca 59 kvm med egen entré och kök.

Möjlighet finns att hyra till stor gårdsyta samt komplettera med ytterligare 1–3 kontorsplatser i angränsande lokaler. Fastigheten är inhägnad och inkluderar tre parkeringsplatser. Skyltläge mot motorvägen erbjuds (bygglov söks av hyresgästen).
Observera att bilverksamheter undanbedes.

Område:
Lokalen är belägen på Bangårdsvägen 21 – ett attraktivt och strategiskt läge mitt emot IKEA. Här befinner du dig i ett expansivt område med närhet till både handel, service och andra företag, vilket skapar optimala förutsättningar för verksamheter som behöver god logistik och tillgänglighet.

Kommunikationer:
Fastigheten ligger mycket nära motorvägen, vilket ger snabba och effektiva transportmöjligheter. Det strategiska läget gör det enkelt att nå både lokala och regionala knutpunkter. Goda parkeringsmöjligheter finns i direkt anslutning till lokalen.

Snabbfakta:
• Lagerdel ca 200 kvm med port (ca 4 x 4 m)
• Kontorsdel ca 59 kvm med egen entré och kök
• Möjlighet att hyra stor gårdsyta
• Inhägnad fastighet med tre parkeringsplatser
• Bra skyltläge mot motorvägen
• Dusch och wc i lokalen
• Hög bärighet i golv (bottenplatta ca 30 cm)
• Möjlighet att hyra till extra kontorsplatser (1–3 st)
• Strategiskt läge mitt emot IKEA

Har ni frågor eller vill ni boka tid för en visning? Välkommen att kontakta oss på 031-3504900 eller hej@loqalo.se

Karta

Bilder på lokalen