Kontor, Torsgatan 30, City/Norra Bangården, Stockholm
- 248 m²
- 2025-10-13
Modernt kontor i karaktärsfull fastighet med uteplats
Om lokalen
- Lokaltyp
- Kontor
- Total yta
- 248 m²
- Adress
- Torsgatan 30
- Område
- City/Norra Bangården
- Kommun
- Stockholms kommun
- Byggår
- 1906
- Hiss
- Nej
- Tillträde
- 2025-10-13
- Objektsnummer
- 41994896
Beskrivning
Här erbjuds ditt företag en flexibel och attraktiv kontorsmiljö i en representativ byggnad som kombinerar funktion och stil på ett genomtänkt sätt. Lokalen har egen entré från den lugna innergården och stora fönsterpartier som ger ett ljust, öppet uttryck med modern industriell karaktär.
I källarplanet finns omklädningsrum med duschar, vilket ger goda förutsättningar för cykelpendling och träning i anslutning till arbetsdagen. Innergården är dessutom utrustad med både utegym och padelbana.
Omgivning
Norra Bangården – en levande knutpunkt för framtidens arbetsliv
Precis där Vasastan, Norrmalm och Kungsholmen möts växer ett nytt cityläge fram – Norra Bangården. Ett område fullt av kontraster, där industrihistorien möter modern arkitektur och framtidens arbetsplatser tar form. Här finns innerstadens hela utbud inom räckhåll, med bara några minuter till Stockholms centralstation, tunnelbana, pendeltåg, flygbussar och cykelstråk.
Norra Bangården är en plats i rörelse – med ett växande utbud av caféer, restauranger, hotell och kulturella upplevelser. Här finns plats för både fokus och flöde, med grönområden att landa i under arbetsdagen och ett stadsliv som alltid är nära. Det är en del av city som ännu känns lite hemlig – men inte så länge till.
Det här är en plats att ta del av, bjuda in till och längta tillbaka till.
Kommunikationer
På bara några minuters promenad når du T-Centralen, Sankt Eriksplan och Hötorget. Flera busslinjer och Arlanda Express finns i direkt närhet. För dig som föredrar att cykla erbjuder området utmärkta cykelförbindelser och cykelbanor precis utanför byggnaden. Ett gemensamt cykelrum med laddskåp och omklädningsrum gör cykelpendlingen både smidigare och bekvämare.
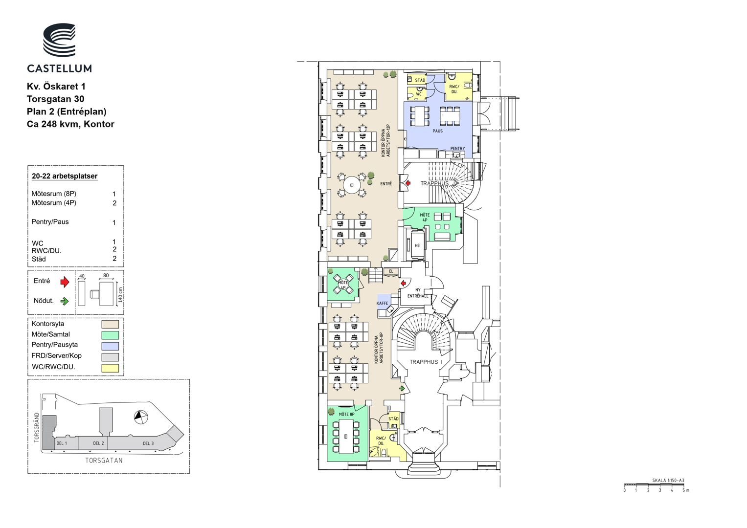
Planlösning
Planlösningen erbjuder en effektiv arbetsstruktur där varje kvadratmeter används optimalt. Längs fönsterlinjen finns en större öppen kontorsyta, och i anslutning ligger tre mötesrum i varierande storlek.
Parkering
På Torsgatan 12 finns ett garage för både besökande och reserverade garageplatser, med eller utan el. Är du intresserad kontakta Aimo Park på telefonnummer 0771-96 90 00.
Service
Behöver du mötesrum eller en flexibel arbetsplats för en dag? Hyr mötesrum eller köp ett dagspass hos coworkingbolaget United Spaces, som ligger i entréplanet på Torsgatan 26. Här erbjuds både service och mötesrum av hög kvalitet.
På de två grönskande innergårdarna kan du varva ner eller ägna dig åt träning. Förutom en padelbana, som bokas via court22.se, finns även ett utegym för den som föredrar andra träningsformer. Efter träningen kan du slå dig ner vid vårt utekontor – ett komplett kontorsutrymme under bar himmel, utrustat med WiFi, eluttag och ergonomiska arbetsplatser.
Övrigt
Byggnaden uppfördes i början av 1900-talet som huvudkontor för Stockholms Gas- och Vattenverk och är ritad av den välkände arkitekten Ferdinand Boberg i en stilfull jugendstil. Detta är idag ett av Stockholms mest ikoniska landmärken.
Fastigheten har genomgått en varsam renovering med stor omsorg om dess unika kulturhistoriska värden och för att möta dina behov.




















