Övrig lokal, Wennerbergsgatan 1, Kungsholmen, Stockholm
- 158 m²
- 30 283 kr/mån
Kontor - Butik - Showroom Marieberg, Kungsholmen
Om lokalen
- Lokaltyper
- Övrig lokal / Kontor / Butikslokal / Lagerlokal
- Total yta
- 158 m²
- Adress
- Wennerbergsgatan 1
- Område
- Kungsholmen
- Kommun
- Stockholms kommun
- Objektsnummer
- 41994285
- Hyra
-
30 283 kr/mån
2 300 kr/m²/år
Beskrivning
Välkommen till denna genomgående butikslokal med generöst ljusinsläpp från flera stora, välexponerade skyltfönster. Lokalens flexibla planlösning erbjuder många möjligheter för din verksamhet.
Genomgående planlösning med mycket dagsljus.
Tidigare inredd som restaurang
Möjlighet att hyra parkeringsplatser i anslutning till lokalen.
Perfekt för:
Showroom, Kontor med representativ front, Detaljhandel eller kanske en utställningslokal.
Läge och kommunikationer.
Strategiskt placerad på gränsen mellan Kungsholmen och Marieberg med god exponering och kundflöde. Utmärkta kommunikationer med närhet till både tunnelbana och busshållplatser.
Se även film på lokalen: https://vimeo.com/1051081764?share=copy#t=0
Viktigt, lokalen lämpar sig inte för restaurang-, café- eller livsmedelsverksamhet.
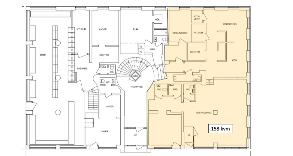
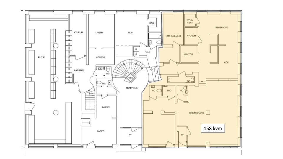
Wennerbergsgatan 1
Yta: ca 158 kvm
Hyra: ca 30 280:- /mån ex moms (Värme & vatten ingår)
Hyran gäller som lokalen ser ut idag.
Fastighetsskatt: ca 3 000:-/mån ex moms
Tillträde omgående enligt överenskommelse.
Hyresdeposition kommer begäras.
Titta gärna på området innan vi bokar visning.
Mailkontakt med Mäklaren för bokning av visning.
Nextor Group AB • Michel Rydberg • michel@nextor.se










