Kontor, Österväg 21, Centrum, Visby
- 122 m²
- Enligt överenskommelse
Ljus kontorslokal med terrass vid Österport
Om lokalen
- Lokaltyp
- Kontor
- Total yta
- 122 m²
- Adress
- Österväg 21
- Område
- Centrum
- Kommun
- Gotlands kommun
- Hiss
- Nej
- Våning
- 2
- Tillträde
- Enligt överenskommelse
- Objektsnummer
- 41994518
Beskrivning
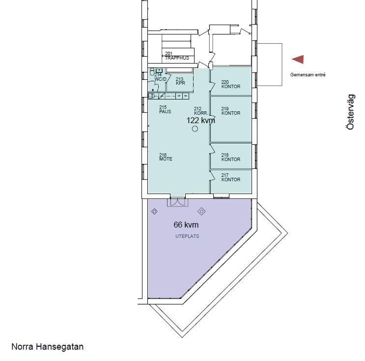
Nu finns möjligheten att hyra denna ljusa och inbjudande kontorslokal på 122 kvm med tillhörande terrass på 67 kvm. Lokalen erbjuder en öppen och flexibel planlösning med fyra separata kontorsrum – perfekt för det mindre företaget.
Lokalen har ett strategiskt läge, bara ett stenkast från ringmuren, med matbutiker, restauranger och gym inom bekvämt räckhåll.
Varmt välkommen att höra av dig så berättar vi mer!
Omgivning
Fastigheten ligger precis utanför Österport, i korsningen mellan Österväg och Norra Hansegatan. I området finns all önskvärd service i form av affärer, restauranger och bussterminal med avgångar till Fårö och Tofta. Att promenera till citykärnan i Visby tar ca 10 minuter, till färjeterminalen ca 20 minuter och till flygplatsen är det 10 minuters resa med bil eller buss.
Kommunikationer
Ett av Visbys bästa lägen att nå med buss, bil och nära till taxistation. Goda kommunikationer till bl.a. Fårö och Tofta samt nära till både färja och flygplats.
Planlösning
- Öppen och flexibel planlösning
- Fyra kontorsrum
- Fullutrustat kök
- WC med dusch
- Terrass
Parkering
Gott om parkeringsplatser i anslutning till fastigheten med möjlighet att betala per timme eller månadsvis.
Service
Då fastigheten ligger i Centrala Visby är det promenadavstånd till all tänkbar service.













